萬欣裝飾品質領先,放心之選!
6大設計風格
經(jīng)典案例
設計團隊
熱裝樓盤
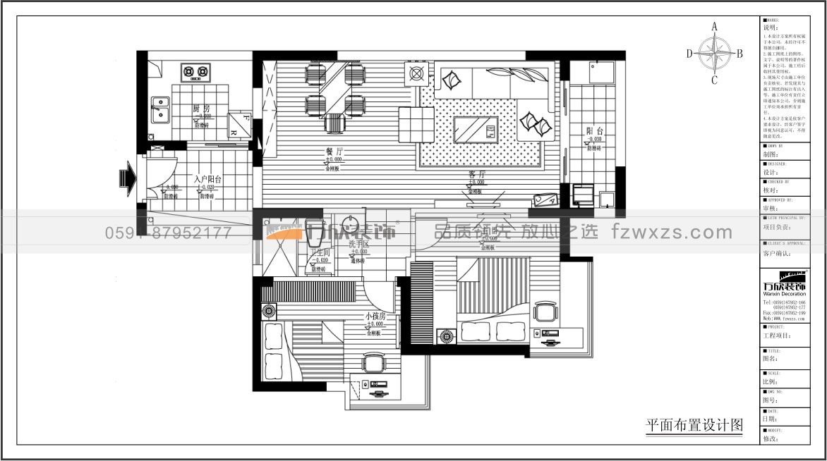
整體素雅的色調,簡約的線條,沒有特別花俏的裝修,拒絕能讓人眼花繚亂的物件,更是沒有一件多余的東西。
官方微信
福州裝修公司萬欣裝飾,您的放心選擇!◎Copyright福州萬欣裝飾設計工程有限公司版權所有
萬欣裝飾客服QQ:449140065 閩ICP備19021104號
在線咨詢
預約裝修
售后服務
回到頂部